暖秋
暖秋
品质Quality · 美学Aesthetics · 追求Pursuit

说在前面
此项目是精装房改造,就是那种你知道的开发商的精装房,猪肝红的木地板、亮瞎眼的波导线、金灿灿的柜门都是标配。 业主是位小姐姐,有几点要求: 1. 首先要有木质的元素,空间整体柔和一点,要有很多放衣服的柜子。 2. 男主要求比较简单,要有地方展示和储藏他那几十瓶名贵的茅台酒。
围绕这2点,我们把风格定位为现代诧寂风格,运用木纹和艺术水泥漆营造出空间效果,重新规划空间,整合一些看似重要实则浪费的空间,把这些空间充分利用,来满足业主现阶段和未来几年间的真正功能需求。

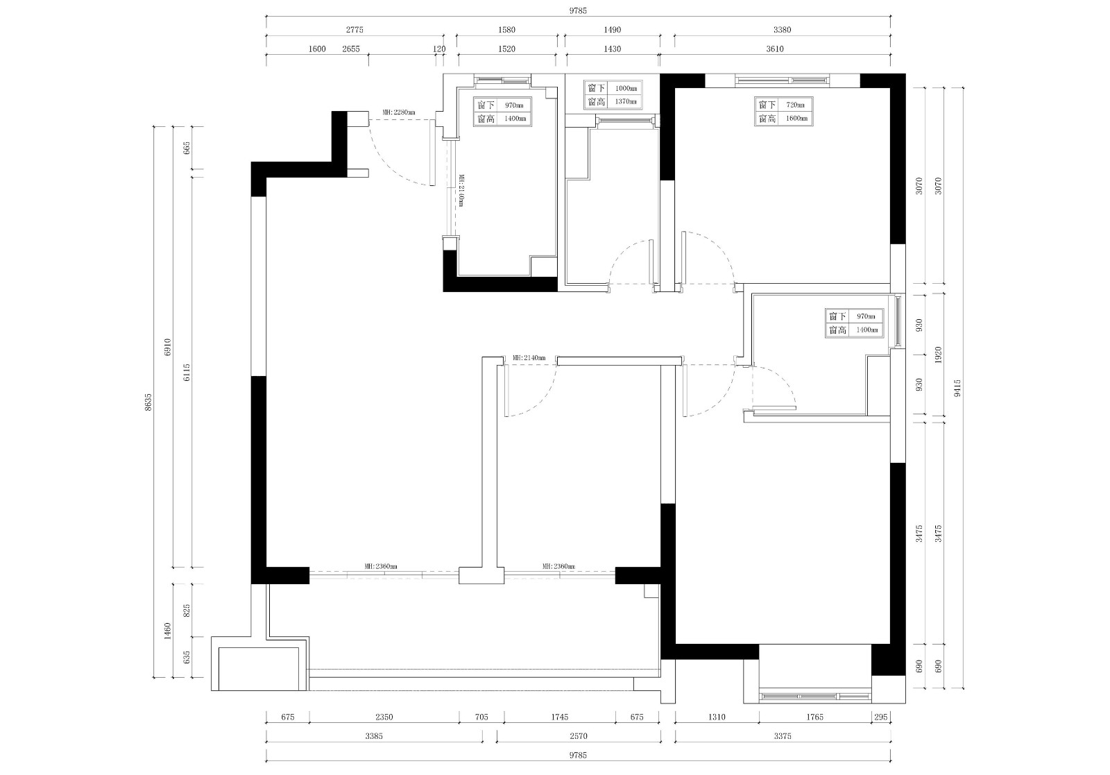
▲ 原始户型图
本户型算是一间标准的三房两卫的格局,乍一看格局还不错,因为总面积只有110多平米,分成这么多空间之后,就会存在各个空间的面积不足的问题,比如客厅纵深不够,厨房台面不足,主卧放在衣柜之后,再放个1.8米的床就会很拥挤了...我们的设计方案就是根据这几点调整的。 #户型图 #户型改造 #精装房改造#

▲ 平面布置图
我们首先把厨房里面的冰箱挪到了餐厅位置,又设计出西厨电器柜并加大了冰箱的空间,变成了对开门冰箱。然后拆除了阳台的移门,拓展了客厅的纵深。本案最大的亮点就是把一间次卧改成了主卧的衣帽间,既解决了主卧室衣柜不足的问题,又释放了主卧室的空间,使得主卧室显得不是那么拥挤,然后又利用了过道墙体做了一组展柜用于展示客户的名贵藏酒。之所以这样设计,也是充分了了解客户的需求,这是一对小两口的婚房,深入分析需求之后,发现他们并没有三间卧室的需求,而且几年之后还会换更大的house,才做出了这样的设计改造,所以方案没有好坏之分,只有适不适合。#户型图 #户型改造 #精装房改造#
01
客厅
Living Room
▲ 改造前——不合理的空调机位,亮瞎眼的高光波导线和亮面瓷砖,还要笨重的阳台移门。

▲ 首先拆除掉笨重的阳台移门,由于阳台两边的垛子都为承重结构,且上方有大梁,我们把门洞弧形艺术化的处理,使得空间更加的柔和,也自然的过渡,和阳台空间连为一体,拓展了整个客厅的空间。电视背景和过道柜体延伸一体,也延展了空间。#客厅#木饰面#艺术水泥漆#雾化壁炉#弧形吊顶#弧形门头#7分哑光地砖#

▲ 沙发背景采用了大面的木饰面设计。地砖更换了灰色调的7分哑光的砖面,既沉稳了空间,又不失明亮。

▲ 沙发来自北欧表情,面料是科技皮革。顶面摈弃了原有传统的回字形吊顶,采用了弧形设计,既拉高了空间,又和阳台弧形门洞相呼应。

▲ 阳台窗帘是网红的纱质竖百叶帘,使得空间非常的通透且更有艺术感,尤其清晨阳光洒进来透过间隔的竖百叶帘,真的非常美。懒人沙发旁的马醉木,显得空间生机勃勃。

▲ 原来越多的家庭,客厅不放传统的茶几了,把空间解放出来,可以愉快的躺平在地毯上。

▲ 特写一张,沙发一角。

02
餐厅
Dining Room
▲ 改造前——门禁可视对讲位置不合理,影响餐边柜的制作。

▲ 餐厅背景与客厅背景在同一面墙上,采用了统一的设计手法,用木饰面整体延伸,也扩大了客餐厅的空间感,因为精装房,配电箱的位置无法移位,挂上一幅个性的浮雕画,也别有一番意境。
03
主卧
Master bedroom
▲ 改造前——惨不忍睹的猪肝红地板。

▲主卧室的改造主要是软装的改造,只在床头增加了1米高的木饰面灯光背景,和整体的设计风格相呼应。墙面是米色的整体墙布,地板也更换成了雅致的灰色调实木多层地板。

04
衣帽间
Changing Room
▲ 改造前——一间狭小且利用率不高的客房。

▲ 衣帽间,每个女孩有想拥有一间衣帽间,房间靠着阳台,采光非常好,女主怕衣柜里面收拾的不是很利索,就使用了实体的柜门。预留的小冰箱格子,还别有一番灵动呢。
05
阳台
Balcony

▲ 改造前——阳台和客厅内外有高差,没有整体性。
▲ 阳台,设计了水池增加了阳台的实用功能性,洗洗小东西,就不用跑卫生间了。地砖通铺到客厅,也增大了空间感,没有高低差也方便了许多。
▲ 改造前——与外立面统一的真石漆,难于打理。

▲ 生活阳台,洗衣机烘干机套装组合,烘干机越来越成为了很多家庭的必备了,谁用谁知道,真的很能提升幸福感的一件家电。旁边的家政柜里面也有乾坤,预留了插座可以为吸尘器充电,还要很多其他的清洁工具,全都收纳起来的感觉真的很好。
06
厨房
Kitchen
▲ 改造前——金灿灿的土豪金。
▲ 厨房,重新设计了台面和柜门板的颜色,使得全屋风格统一。最重要了是加长了80公分左右的台面,别小看了这80公分地柜和吊柜,真的起了大作用。
——
项目地址 / 南京·中海 左岸澜庭
Project address / Zhong Hai zuo an lan ting · Nanjing
设计团队 / 大漠·室内设计
Design team / Darmend · Interior Design
户型面积 / 110㎡
Unit area / 110㎡
设计时间 / 2022年04月
Design time / April 2022
工程造价 / 23W
Project cost / 23W
项目摄影 / INGALLERY
Photography / INGALLERY
